Продажа просторной 2-ком. квартиры
Продается просторная двухкомнатная квартира по адресу: г. Минск, ул. Разинская,64 в жилом комплексе «Высотный» (2013г. постройки). Подробнее.
Цена – 120 000 у.е.*
Прямая продажа без посредников. Телефон: А1: 8 (029)-656-90-90
Квартира состоит из большой кухни-гостиной, двух изолированных комнат, имеет три балкона, один из которых - десятиметровый панорамный остекленный. Готова к проживанию: хороший ремонт, текстиль, светильники, полностью меблирована, оборудована современной бытовой техникой, сантехникой и джакузи известных мировых производителей.
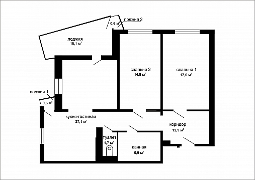
Общая площадь квартиры по СНБ – 86,9 кв. м., общая – 79,4 кв. м., жилая – 31,8 кв. м., кухня-гостиная – 27,1 кв. м., жилая комната 1 – 17 кв. м., жилая комната 2 – 14,8 кв. м., ванная - 5,9 кв. м.; туалет - 1,7 кв. м; коридор – 12,9 кв. м.; балкон 1 - 10,1 кв. м; балкон 2 - 0,6 кв. м; балкон 3 - 0,6 кв. м.
Квартира расположена на 19 этаже 19-тиэтажного дома, есть технический этаж.
Высота потолка в квартире - 2,65 метра. Квартира оборудована отопительными приборами Calidor Super (Италия), счетчиками поквартирного учета тепла, воды и электроэнергии. Оконные и балконные блоки из ПВХ.
Преимущества дома: ухоженный подъезд с оригинальной отделкой мест общего пользования, просторный холл, бесшумные, современные грузовой и пассажирский лифты, металлические входные двери. Внутри и снаружи дома установлены камеры видеонаблюдения, две парковки, благоустроенный двор, зелёная зона, детские площадки, приветливые соседи.
Жилой комплекс «Высотный» - это два 19-тиэтажных панельных жилых дома №62 и №64 по ул. Разинской в г. Минске, в каждом из которых по 133 квартиры различных планировок. Введен в эксплуатацию в первом квартале 2013 г.
Одно из преимуществ жилого комплекса «Высотный» - это его месторасположение: дом стоит в стороне от дороги, шаговая доступность до ст. м. «Грушевка», хорошее транспортное сообщение, на авто до центра 5 минут, до МКАД 10 минут.
В непосредственной близости от ЖК «Высотный» находятся детские сады, общеобразовательная и музыкальная школы, а также хорошо развитая инфраструктура- в шаговой доступности «Грушевский сквер», бассейн, тренажерный зал, банки, магазины, отель Ренессанс, много кафе, мед учреждения.
* Оплата производится в белорусских рублях в сумме, эквивалентной сумме в долларах США по курсу Национального банка Республики Беларусь на дату платежа.
Цена – 120 000 у.е.*
Прямая продажа без посредников. Телефон: А1: 8 (029)-656-90-90
Квартира состоит из большой кухни-гостиной, двух изолированных комнат, имеет три балкона, один из которых - десятиметровый панорамный остекленный. Готова к проживанию: хороший ремонт, текстиль, светильники, полностью меблирована, оборудована современной бытовой техникой, сантехникой и джакузи известных мировых производителей.
Общая площадь квартиры по СНБ – 86,9 кв. м., общая – 79,4 кв. м., жилая – 31,8 кв. м., кухня-гостиная – 27,1 кв. м., жилая комната 1 – 17 кв. м., жилая комната 2 – 14,8 кв. м., ванная - 5,9 кв. м.; туалет - 1,7 кв. м; коридор – 12,9 кв. м.; балкон 1 - 10,1 кв. м; балкон 2 - 0,6 кв. м; балкон 3 - 0,6 кв. м.
Квартира расположена на 19 этаже 19-тиэтажного дома, есть технический этаж.
Высота потолка в квартире - 2,65 метра. Квартира оборудована отопительными приборами Calidor Super (Италия), счетчиками поквартирного учета тепла, воды и электроэнергии. Оконные и балконные блоки из ПВХ.
Преимущества дома: ухоженный подъезд с оригинальной отделкой мест общего пользования, просторный холл, бесшумные, современные грузовой и пассажирский лифты, металлические входные двери. Внутри и снаружи дома установлены камеры видеонаблюдения, две парковки, благоустроенный двор, зелёная зона, детские площадки, приветливые соседи.
Жилой комплекс «Высотный» - это два 19-тиэтажных панельных жилых дома №62 и №64 по ул. Разинской в г. Минске, в каждом из которых по 133 квартиры различных планировок. Введен в эксплуатацию в первом квартале 2013 г.
Одно из преимуществ жилого комплекса «Высотный» - это его месторасположение: дом стоит в стороне от дороги, шаговая доступность до ст. м. «Грушевка», хорошее транспортное сообщение, на авто до центра 5 минут, до МКАД 10 минут.
В непосредственной близости от ЖК «Высотный» находятся детские сады, общеобразовательная и музыкальная школы, а также хорошо развитая инфраструктура- в шаговой доступности «Грушевский сквер», бассейн, тренажерный зал, банки, магазины, отель Ренессанс, много кафе, мед учреждения.
* Оплата производится в белорусских рублях в сумме, эквивалентной сумме в долларах США по курсу Национального банка Республики Беларусь на дату платежа.
Другие новости
-
26 Май 2023
-
13 Мар 2023